Skip links

doit.19

A project located in the microcenter of the city of Paysandú, with 1 and 2 bedroom units, strategically located in a high demand area and close to all services.

About

doit 19
An unmissable project, with a modern design, located in the microcenter of the city in
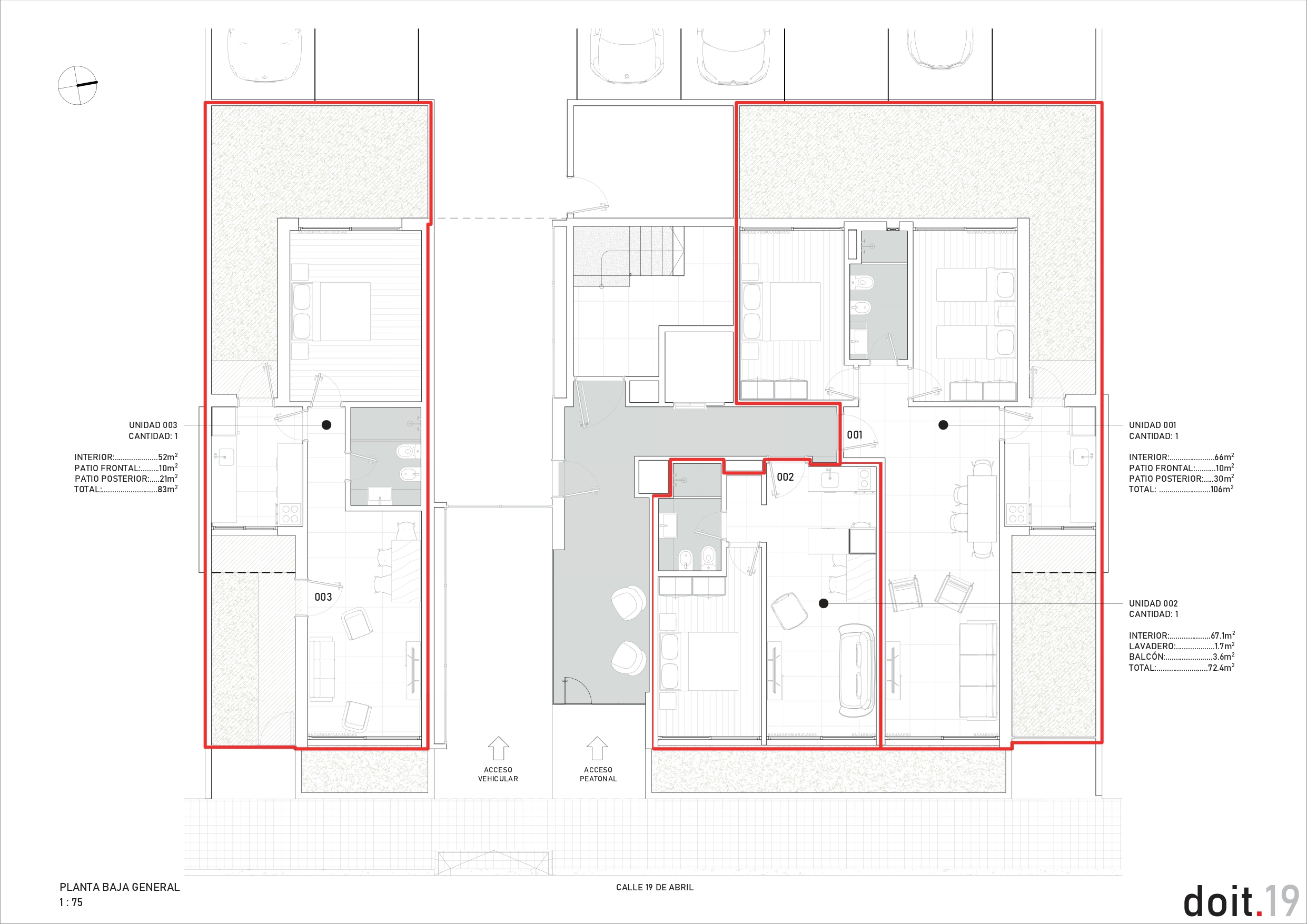
With a total of 11 floors plus first floor, it is located close to CenuR headquarters, cultural and recreational spaces, banks and financial institutions, in a high demand area.
It has a total of 47 apartments, of one and two-bedroom units, with the option of having access to garages.
Great success in pre-sale stage: Units available.
Commercialized by: Mannise Real Estate Agency and Paysandú Real Estate Agency.

doit.19

UDELAR

doit. Herrera

Municipal Market

Electoral Board

BROU

Departmental Intention 

Florencio Sánchez Theater

Court

Constitution Square

IFD

Other Developments

Paysandú

doit.19

See
Montevideo

doit. Araúcho

See
Paysandú

doit.Montecaseros

See
This site uses cookies to improve your browsing experience.
Open chat
Hello 👋
How can we help you?